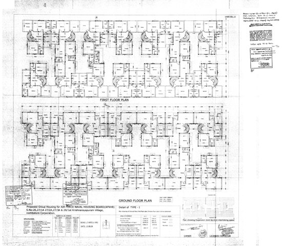
Coimbatore Project : Drawings